- Screen Colours:
- Normal
- Black & Yellow
WICKHAM MARKET VILLAGE HALL
For lettings contact: lettings.wmvillagehall@gmail.com
For more information visit website: www.wmvillagehall.org.uk
COMMUNITY ENGAGEMENT SURVEY
Please let us have your views by completing this quick survey.
Survey Monkey questionnaire

Community Action Suffolk Health Check
PROJECT STRUCTURE AND MILESTONES
Village Hall Decarbonisation Report
Village Hall Parking Consultation
This brief article aims to communicate the modernisation process that we are currently engaged with and the various stages that we need to go through to deliver the new hall on behalf of the residents of Wickham Market. It is not intended to be an exhaustive description but rather describe an over-view.
There are four distinct stages to the modernisation:
CONCEPT DESIGN
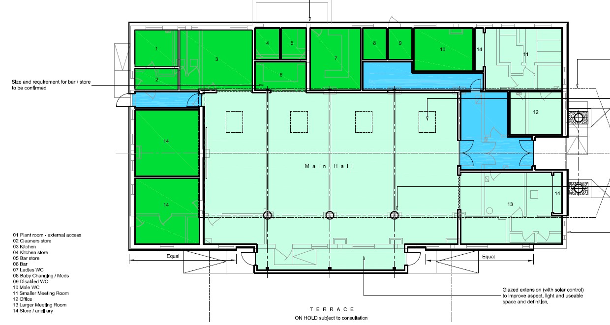
Many of you will have seen the Concept Design drawings which have been produced by the architect. These initial drawings convey the potential layout of the hall, making most use of the space, the existing structure and directional aspects of the building. The purpose of these drawings is to attract funding for the project and communicate to village residents how the building space will could be better utilised.
These drawings are NOT the final design and are not designed to display how the internal space will be fitted out. More detailed plans will be developed once the funds for the project are in place. These plans will be used for any planning application that we require. At December 2024 this is where we are in the process.
FUND RAISING
Through the hard work of the team, we have been successful in securing £500K of funding from East Suffolk Council. Together with funds already ringfenced for modernisation we currently have half of the total funds required to deliver the project. The Joint Modernisation Working Group is currently engaged in identifying and applying for funding from various appropriate organisations. We were unsuccessful with our grant application for funds from the National Lottery however we are currently awaiting to hear whether we have been successful in securing Sizewell C Community Funding.
A lot of work has been conducted to ascertain quotes for the various aspects of the work required to modernise the hall. These have been used to arrive at a total cost for the project.
To be clear, if we do not secure the required funding, the modernisation of the hall cannot move forward.
PROJECT GOES LIVE
Once we have secured the required funding, we will be able to initiate the main phase of the project. We will procure contracts for the detailed design and modernisation of the hall. The detailed plans will be shared with the community and used for any planning applications that are required.
It is at this point that we will have to close the hall to users for 12-15 months to allow the hall to be stripped out ready for re-development.
We will make every effort to ensure the speedy completion of the modernisation, minimising the amount of disruption caused and the time that the hall is closed to users.
FITTING OUT THE HALL
Once the structural aspects of the hall have been constructed and the services (electricity, water etc) installed we will turn our attention to the fit-out of the hall ready for users to return. This will include the kitchen, meeting rooms, toilets as well as the main hall area. Every Effort will be made to accommodate the community’s wishes and preferences within budgetary and design constraints.
Once this phase of work is completed, we will be able to re-open the hall and welcome existing and new users of the hall. It must be remembered that the hall will be very different to its current layout and finish. It will be more flexible, accessible, welcoming and energy efficient community asset for us all to be proud of, use and enjoy.
MODERNISATION NEWS
Wickham Market Parish Council and the Village Hall Charitable Incorporated Organisation (CIO) have formed a joint working group to manage the modernisation of the village hall. This page will be updated regularly with news of progress.
JOINT MODERNISATION STEERING GROUP
The current vision for the village hall is a complete redesign broadly within the current footprint and using the existing structure. Here are the initial outline plans.

FUNDING NEWS
Pledge Funding Donation
Joint Modernisation Steering Group (JMSG) which comprises of members of the Parish Council and VH CIO Trustees with support from ESC Councillor Sally Noble and ESC Sam Kenward Communities Officer for Wickham Market and Surrounding Villages
JMSG are in the process of preparing documentation for Applying for District CIL Infrastructure Funding to support the Modernisation of Village Hall we also require evidence of other areas of funding support this will strengthen our funding application case which must be submitted by end of May 2024
JMSG are seeking support from residents and friends of the Village Hall for funding pledges any donations will be of considerable help to achieve our goal
Should you wish to donate towards the Modernisation of the Village Hall please contact (details below)
UPDATES
November 2024
Update Report for Councillors PC Meeting 18th November 2024
Moving on from the fantastic news of the Award of £500K from ESC District CIL Infrastructure Levy Panel on 03rd September 2024 for funding towards Modernisation of Village Hall, Joint Working Group Team hope to build on this success of secured funding from our grant application submitted to Sizewell C Community Foundation for further substantial funding
Sizewell C Community Foundation Grant funding panel are currently reviewing all applications and we hope to receive positive news of our funding application very soon
Unfortunately, we were notified that our application to the National Lottery Stage 1 funding was not successful during this round of funding allocation
Village Hall Working Group Team comprising of members of Parish Council and Village Hall CIO Trustees are a very motivated group bringing together individuals skill-sets working extremely hard to secure further funding from organisations and sources by reviewing each grant fund criteria and completing detailed fund applications including budget costings and business plans to each individual funding organisation such as (CAS) Community Action Suffolk, Rural Community Hub-Grant, Energy Saving Trust with many more being reviewed
Working Group Team continue to explore all avenues of grant funding sources to secure the balance of funding needed to commence village hall modernisation project based on current concept design plans
Current funds secured is less than HALF of the Project Forecast Budgets needed to commence village hall modernisation works or engage an Architect to commence full design plans
ESC planning officer provided a very positive response of support upon reviewing our Pre-Planning application for village hall modernisation concept design plans submitted
Traffic concept plans have been developed for Two Way West Access Route as existing to Football Club and adjacent public parking area to access playing field these plans are now posted in Village Hall and notice boards for public viewing and comment
Village Hall car parking still remains a frustration to village hall user groups who find difficulty in parking when visiting village hall organised events many cars parked by members of the public are not using village hall facilities, children’s play area or recreation field green space and are also parking on playing field as an overspill parking area this site for parking is not sanctioned or endorsed and is causing damage to playing field grassed area
Cllr John Horsnell
10th November 2024
The latest proposed design looks like this. The full plan can be seen here. These plans are not finalised or approved. They have been created to support grant applications

May 2024
Village Hall modernisation concept design drawing scheme layout was developed by PC Architects OWL from Bungay details are on PC web site for review. Village Hall web site page for village hall updates will be changed Ray Lewis will add link to Parish Council web site providing future information and update on Village Hall progress Further detailed village hall building measured survey has been completed by PC Architect OWL and we await issue of layout drawing and report of findings
Before further detailed village hall design drawings can be developed the modernisation project needs to secure considerable funding enabling the project to move forward. Our District CIL Infrastructure Grant Funding Bid of around £500K is in the final stages and will be submitted by 31st May 2024 bids will be reviewed by ESC CIL Grants Committee Board unfortunately there are many local projects that are bidding for District CIL grants and subsequently there is much competing for funds. Joint modernisation Steering Group has written to Pettistree Parish Council requesting a donation from their CIL Funding received from the Wickham Place housing development project and await response.
Draft Terms of Reference (TOR) has been drafted by the Clerk for the formulation of the Village Hall Joint Modernisation Committee comprising of members of Parish Council and Village Hall Trustees non committee members can be included with specialised skill sets and without voting rights details to be finalised. ESC Councillor for Wickham Market Ward, Sally Noble and ESC Sam Kenward Communities Officer for Communities covering Framlingham, Wickham Market, Kelsale and Yoxford and surrounding Villages has been attending meetings and provide continued valuable support.
Village Hall Steering Group are exploring avenues of engaging a specialised fund raiser with writing grant application presenting skills and developing funding opportunities. Village Hall must be able to continue to operate until modernisation works commences hopefully in 2025 pending necessary funds and VH is in need of support and funding to continue to cover operational cost. Village Hall Trustees will be exploring grant opportunities provided by ESC Sam Kenward
March 2024
Village Hall Modernisation Steering Group (MSG) has amalgamated and merged to form a Joint Modernisation Steering Group (JMSG) with members from Village Hall CIO Trustees and Parish Council. In order to give the Group financial powers, it will probably have to become a Committee of the Parish Council whilst retaining the original membership. Work to achieve the best solution to this tricky problem is proceeding well.
Sam Kenward, our ESC Communities Officer and Sally Noble, our ESC Councillor for Wickham Market Ward, were extremely helpful in getting the JSMG meetings up and running but may well step back a little as the structure of the group changes.
An architect has been selected on a competitive tendering basis ensuring that they had sound experience and good references for Village Hall Modernisation projects. Subsequently a purchase order was placed by the Parish Council with OWL Architects of Bungay.
The JMSG formulated the Architects outline specification and outline Clients general vision of objectives along with a brief enabling the Architect to provide two or three initial Concept Design Schemes for review on 20th March 2024.
OWL Architects presented the initial Concept Design Schemes on Tuesday 26th March 2024. These schemes are being reviewed, together with their supporting detailed reports, and soon we should be in a position to move forward and obtain costed options from specialised main contractors for the modification works.
District Community Infrastructure Levy (CIL) Grant Application Form is being prepared. A meeting with ESC is being arranged to discuss our submission to enable us to have best possible change of receiving a substantial grant towards funding the Village Hall modernisation project.
A considerable amount of work is needed to raise the funds needed to carry out modernisation of the Village Hall as the CIL grant is unlikely to cover the full cost.
It is appreciated that the existing Village Hall must be able to continue to operate until the work starts. Consequently, some essential work is being planned. The Village Show 2023 has donated funds towards cost to carry out a specialised Kitchen Deep Clean and hopefully this much needed work will be completed soon.
January 2024
Hello there Wickham Market, we hope that we bring you good news!
We have been formulating a plan over the last few months, on top of the years of hard work done by so many, on a path for our beloved, Village Hall. We have listened and we are aware that many of you, really love the Village Hall we have. You have felt frustrated at the speed in which things were moving to make better use of the space we have here. We think that we have found a way to remedy these situations!
We would like to confirm a programme of modernisation, meaning that works can be done in stages, as and when the money is available. This means that we may be able to make some changes quite quickly!
The Parish Council and the Village Hall CIO have been meeting, and more recently, representatives from East Suffolk Council, to focus our attention on the future of the Village Hall. There are of course items that will need to be ironed out as with any project, but we believe that with the right guidance and team supporting us, we will be able to deliver on a much better shared community space.
We would always welcome your views on anything to do with our lovely village, so feel free to email us on clerk@wickhammarketpc.com with any comments you may have.
We would like to thank John H and David C, for their hours of work on getting the paperwork ready for us to be able to get this far. Volunteers like these, are hard to come by.
VILLAGE HALL ORGANISATION
Wickham Market Village Hall and Playing Field are owned by Wickham Market Parish Council. They are managed by a registered charity known as the Wickham Market Village Hall Charitable Incorporated Organisation (CIO). Its Charity Number is 1172384.
The Trustees of Wickham Market Village Hall CIO are:-
- Steve Flavell
- Clive Edmonds
- Sue French